视觉室内设计施工图基础班11月21日上课内容作业贴3
发布于:2016-11-25 14:59
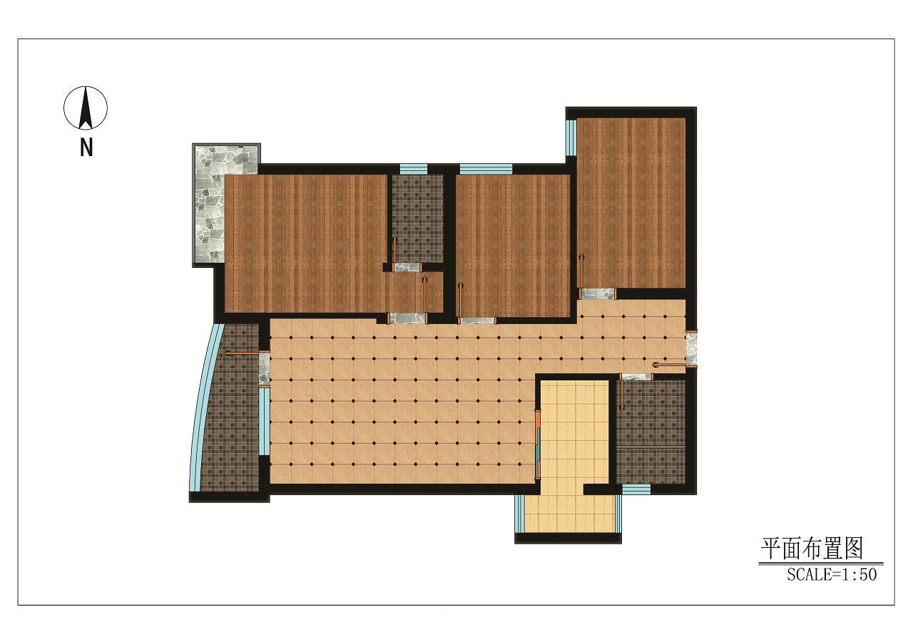
课程名称:CAD-绘图-材料表示
讲 师:孙志钱
视频回放地址地点:http://www.xsteach.com/course/2855
课程重点:材料/绘图
作业内容:
根据课上内容设置设置,并且绘制出地面铺贴图
(作业以附件(压缩包)的形式上传/回复到帖子下方)

下节课程上课时间:2016-11-25日 (今天)
上课地址:http://www.xsteach.com/live/course/view?id=294
作业提交时间:下次上课前以帖子形式回复到下方
下节课上课内容预告:PS/彩平图
PS这块基础内容详解,请对这一块不熟悉的小伙伴们记得在今天带好小板凳准备听课哦
上课效果图预览:
悄悄告诉大家房地产宣传单上面的就是他呦!!
共有4条评论
正序查看
倒序查看
0
今日新帖
0
昨日新帖
45
帖子总数
推荐
换一组
【SketchUp草图大师】正式学员作业贴
VR·游戏开发 2014-11-15 09:37
Unreal Engine4课程介绍!
VR·游戏开发 2017-06-20 11:35
【学员故事】只有比别人更早、更勤奋地努力,才能尝到成功的滋味
VR·游戏开发 2016-10-06 15:36
【首推】室内设计课程新搭配,课程大全,推出"超级学员套餐"!
VR·游戏开发 2016-07-28 14:58
3ds Max 快速进阶班第一期公布了!【活动结束】
VR·游戏开发 2015-10-25 15:32
【3dmax常见问题汇总】关注邢帅教育室内设计公众号了解更多
VR·游戏开发 2015-05-22 14:47

回复:视觉室内设计施工图基础班11月21日上课内容作业贴3